GeberIt ProPlanner planlama yazılımı GeberIt ile güvenle planlayın
Geberit, Geberit ProPlanner planlama yazılımıyla size gelişmiş bir araç sağlamaktadır.
Geberit ProPlanner, orta ile büyük projelerin planlamasını ve hesaplamasını kendileri üstlenen planlayan sıhhi tesisatçıların ve sıhhi tesisat müteahhitlerinin tam ihtiyaçlarına göre tasarlanmıştır.
Planlama modülleri tüm sıhhi tesisat teknolojisini kapsamaktadır – İçme suyu, atık su ve montaj sistemlerinden (Geberit Duofix / Geberit GIS) negatif basınç çatı drenaj sistemine (Geberit Pluvia) kadar.
Planlama modülleri
Montaj sistemleri
Hızlı, kolay ve etkili montaj sistemi planlaması:
- Montaj sistemleri planlaması
- Geberit Duofix ve Geberit GIS ürün yelpazesi
- Hızlı modda planlama
- Hızlı, kolay ve etkili montaj sistemi planlaması
- Detaylı 3D planlama modülüne dışa aktarma fonksiyonu
- CAD dışa aktarma arayüzü (Autodesk® RealDWG®)
- En yeni kurallar ve Geberit ürünleri entegre edilmiş
- Geberit direktiflerine ve kurallarına göre hesaplama
- Malzeme, parça, teklif ve kesim listelerinin otomatik verilmesi
- Yatay, dikey kesit ve montaj çizimlerinin otomatik verilmesi

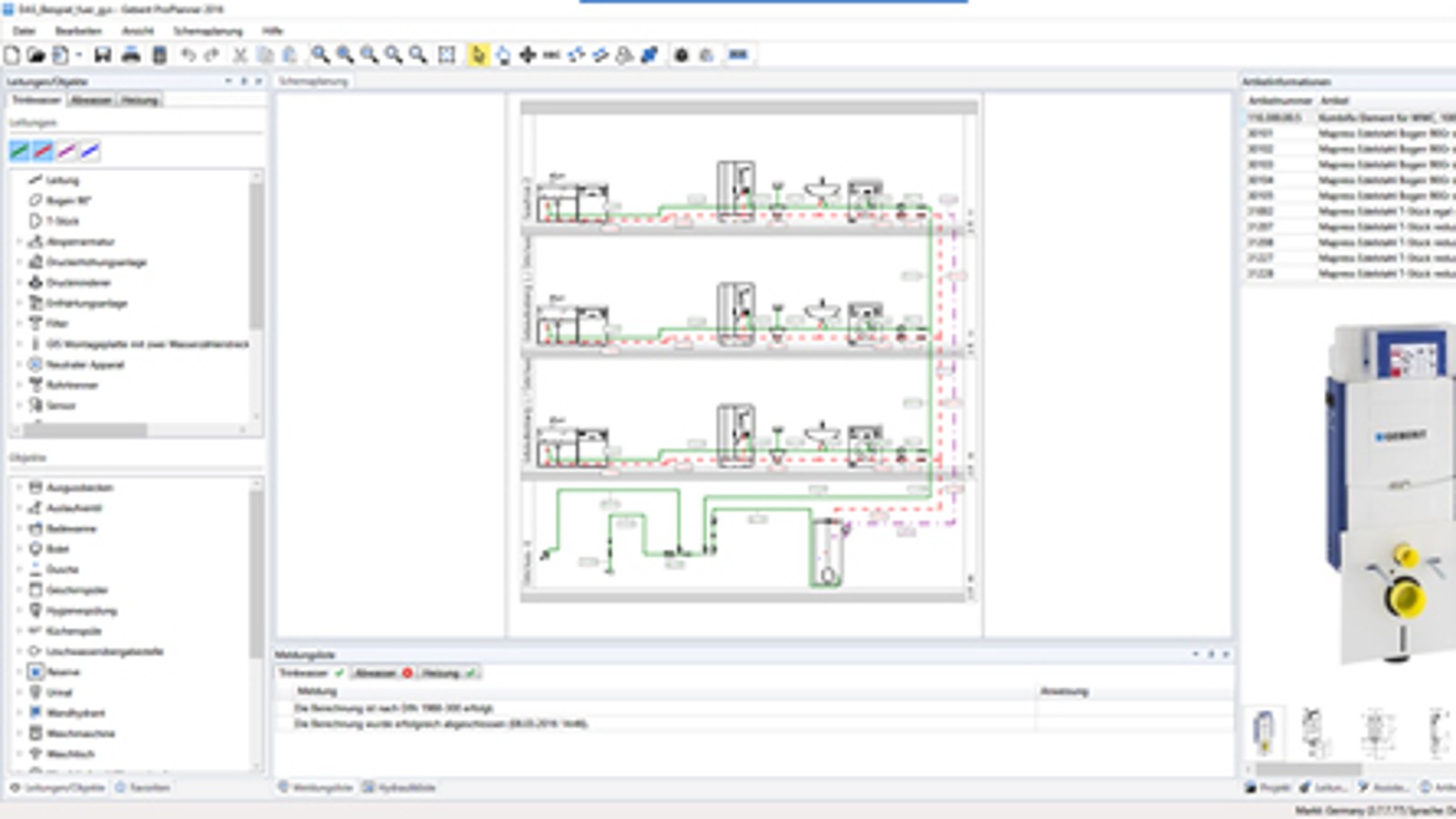
Şema planlaması
Detaylı çizilmiş boru hattı sistemi planlaması:
- İçme suyu ve atık su sistemlerinin planlanması
- Ürün yelpazesi Geberit Mepla, Geberit PushFit, Geberit Mapress Paslanmaz Çelik, Geberit Mapress Bakır, Geberit PE, Geberit Silent-PP, Geberit Silent-db20 ve Geberit Silent-Pro
- Şemada planlama
- Detaylı çizilmiş boru hattı sistemi planlaması
- CAD dışa aktarma arayüzü (Autodesk® RealDWG®)
- En yeni kurallar, normlar ve Geberit ürünleri entegre edilmiş
- Ulusal standartlara göre hesaplama
- Malzeme, parça, hidrolik ve teklif listelerinin otomatik verilmesi
- Şema çizimlerinin otomatik verilmesi

Detaylı 3D planlama
Banyoların kapsamlı ve detaylara uygun planlaması:
- Tesisat, içme suyu ve atık su sistemlerinin planlanması
- Ürün yelpazesi Geberit Duofix, Geberit GIS, Geberit Mepla, Geberit PushFit, Geberit Mapress Paslanmaz Çelik, Geberit Mapress Bakır, Geberit PE, Geberit Silent-PP, Geberit Silent-db20 ve Geberit Silent-Pro
- Yatay kesitte, dikey kesitte ve 3 boyutlu planlama
- Banyoların kapsamlı ve detaylara uygun planlaması
- CAD içe ve dışa aktarım (Autodesk® RealDWG®)
- CAD planları temelinde doğrudan planlama
- En yeni kurallar, normlar ve Geberit ürünleri entegre edilmiş
- Geberit direktiflerine ve kurallarına göre hesaplama
- Malzeme, parça, teklif ve kesim listelerinin otomatik verilmesi
- Yatay, dikey kesit, 3D ve montaj çizimlerinin otomatik verilmesi

Çatı drenaj sistemi
Optimum hidrolik, ekonomik, aynı zamanda güvenle planlanmış boyutlandırma:
- Geberit Pluvia negatif basınç çatı drenaj sistemlerinin planlanması
- Geberit PE, Geberit Silent-db20 ve Geberit Pluvia ürün yelpazesi
- İzometride planlama
- Optimum hidrolik, ekonomik, aynı zamanda güvenle planlanmış boyutlandırma
- CAD içe ve dışa aktarım arayüzü (Autodesk® RealDWG®)
- CAD planlarında çatı alan hesaplaması
- En yeni kurallar, normlar ve Geberit ürünleri entegre edilmiş
- Ulusal standartlara veya Geberit kurallarına göre hesaplama
- Malzeme, hidrolik ve teklif listelerinin otomatik verilmesi
- İzometri çizimlerinin otomatik verilmesi

Atık su tesisatı ön üretimi
Fittinglere ve detaylara tam uygun atık su sistemi planlaması:
- Atık su sistemlerinin planlanması
- Geberit PE ve Geberit Silent-db20 ürün yelpazesi
- Yatay kesitte, dikey kesitte ve 3 boyutlu planlama
- Fittinglere ve detaylara tam uygun atık su sistemi planlaması
- CAD içe ve dışa aktarım arayüzü (Autodesk® RealDWG®)
- CAD planları temelinde doğrudan planlama
- En yeni kurallar ve Geberit ürünleri entegre edilmiş
- İsviçre Atık Su Standardı temelinde hesaplama
- Malzeme, parça, teklif ve kesim listelerinin otomatik verilmesi
- Yatay, dikey kesit, 3D ve montaj çizimlerinin otomatik verilmesi

Yazılım indirme ve lisansı
Yazılım lisansları
Geberit ProPlanner kurulumundan sonra, tek seferlik kayıt yaparak montaj sistemleri modülünün ücretsiz olarak aktive edildiği bir lisans anahtarı alacaksınız.
Boru hattı sistemleri için şema planlaması, detaylı 3D planlama, çatı drenaj sistemi ve atık su tesisatı ön üretimi modülleri ücretlidir. Yazılım eğitimine katıldıktan sonra Geberit planlama yazılımını tüm kurs katılımcılarının ücretsiz olarak kullanımına sunmaktadır. Ayrıntılı bilgiler ve lisanslar için Geberit'e veya Geberit satış danışmanınıza başvurun.
Şirketin lisansı ile Geberit ProPlanner'i şirketinizde istediğiniz kadar kurabilir ve etkinleştirebilirsiniz. Meslek eğitimi gören kullanıcılar, aynı zamanda tüm eğitim kurumları yazılımı ücretsiz olarak kullanabilirler.
Yazılım indirme
Geberit ProPlanner planlama yazılımının en yeni program versiyonunu indirin.
Sistem gereklilikleri
Planlama yazılımını indirmeden önce lütfen gerekli sistem gerekliliklerini kontrol edin:
| Minimum | Tavsiye edilen | |
|---|---|---|
| İşletim sistemi | Windows 8.1 Windows 10 (1809 itibariyle) | Windows 10 (1809 itibariyle) | 
| İşlemci | Intel ya da AMD çok çekirdekli işlemci | Intel ya da AMD çok çekirdekli işlemci | 
| Çalışma belleği | 2 GB | 4 GB | 
| Sabit disk alanı | 3 GB boş | 6 GB boş | 
| Ekran kartı | 64 MB, DirectX 9 | 256 MB, DirectX 9 | 
| Ekran | 1280 piksel yatay çözünürlük, 900 piksel dikey çözünürlük | 1920 piksel yatay çözünürlük, 1080 piksel dikey çözünürlük | 
| 96 dpi (ekran boyutu) tavsiye edilir | ||
| Çevrimiçi hizmetler | İnternet erişimi gereklidir Geçerli bir e-posta adresi | |
| Sistem bileşenleri | Birlikte gönderilir ve otomatik kurulur: - Microsoft .NET 4.7 - Microsoft DirectX 9 | 
Yazılım eğitimleri
Geberit ProPlanner modüllerini daha verimli kullanmanız için, size hem özel yazılım seminerleri hem de bölgenizde yerel, isteğe bağlı yazılım eğitimleri sunuyoruz.
Geberit ProPlanner indir: